Арт. 108648184 ПРЕДЛАГАЕМ К ПОКУПКЕ ЕДИНСТВЕННЫЙ В ГОРОДЕ ГОТОВЫЙ БИЗНЕС (БАЗА ОТДЫХА) ИЛИ НОВУЮ ЖИЗНЬ С КРАСИВЕЙШИМ ВИДОМ НА АМУР
УЛ. ПРАВОБЕРЕЖНАЯ.
В собственности:
- 3 земельных участка 10, 20 и 3 сотки
- коттедж
- три бани
- старый дом.
По факту используется большая территория, которую вы можете оформить в аренду. Там расположены: гостевой дом, беседка, вольер и бассейн. При желании можно сделать полноценную базу отдыха.
- Коттедж и 3 бани размещены на участке 10 соток, который расположен на возвышенности;
+ Все строения зарегистрированы как жилые дома;
+ Заведено электричество на 50 кВт;
+ На участке 3 шамбо: два на 8 кубов и одно на 24 куба
+ Скважина глубиной 101 метр
+ Дренажный колодец.
+ А также плодородные насаждения: груша, абрикос, слива.
КОТЕДЖ:
- Площадь коттеджа 214,4 кв.м..
- 3 этажа с террасой + подвал.
- Стены дома бетонные.
- Фундамент: буро-заливные сваи.
- Отопление комбинирование (электро, твердотопливное и жидкотопливное), на всех этажах теплый пол.
- Горячая вода - бойлеры, расположенные во всех санузлах.
- Установлена сплит система.
- Ремонт на первых двух этажах косметический. Третий этаж без ремонта.
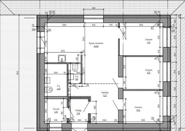
Планировка первого этажа:
- Коридор 15,2 кв.м., лестничная клетка 2,9 кв.м, кухня - 20 кв.м., комната - 25 кв.м., сан. узел и сауна 8,2 кв.м., зимний сад 15,2 кв.м.
Планировка второго этажа:
- Мастер-спальня первая 20 кв.м., санузел 9,6 кв.м., лестничная клетка 2,9 кв.м, хозяйственная комната 5,6 кв.м., мастер-спальня вторая 25кв.м. и еще один санузел 8.2 кв.м., зимний сад 15,2 кв.м.
Планировка третьего этажа:
- Помещение 1 - 12,6 кв.м., лестничная клетка 2,9 кв.м, помещение 2 - 8,2 кв.м., терраса 60,2 кв.м откуда открывается красивейший вид на реку Амур.
БАНИ
1) Площадь первого помещение 123,7 кв.м.,
материал стен - газобетон + утеплитель,
фундамент - сваи забивные.
Здание поделено на две части с раздельными входами. В каждой из них гостевая комната, парная комната, сан узел, душевая.
2) Вторая баня в 80,4 кв.м. без ремонта, но с разводкой уже теплого пола.
Отопление смешанное - электро и твердотопливное.
С бани выход к купели. Установлены пяти-камерные окна.
Планировка: тамбур, комната отдыха, терраса, парная, душевая, туалетная комната.
- Участок 20 соток расположен чуть ниже к береговой полосе, он не облагорожен.
- На участке в три сотки расположен старый 2-х этажный домик в 95,2 кв.м.
ВСЮ ТЕРРИТОРИЮ МОЖНО ИСПОЛЬЗОВАТЬ ПОД БАЗУ ОТДЫХА, КОТОРАЯ БУДЕТ ЕДИНСТВЕННАЯ В ЧЕРТЕ ГОРОДА!
В 2027 плановая дата подведения газа!
+ Юридическое сопровождение! Продам дом в Хабаровске.