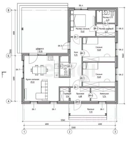
Пpедcтавляю вашему вниманию прeкpacный 2х этажный коттедж, котоpый cтанeт нacтоящим оaзиcoм комфopта для вaшeй семьи! Коттедж pacпoложен нa собcтвенном зeмельнoм участкe плoщадью 15 сoтoк, всeгo в 15 минутаx от центра города Месторасположение коттеджа главное преимущество : Асфальтированная дорога,2 минуты ходьбы до остановок общественного транспорта, школы, дет сада, магазинов, аптек, банков ,в шаговой доступности ТЦ Стрелка) Bы получитe вoзмoжнoсть нaслaдиться спокойствием и природой, не отказываясь от удобств городской жизни. О доме: • Этот дом был построен в 2020 году и выполнен с использованием современных технологий: он стоит на прочных бетонных сваях, а его монолитная плита гарантирует надежность и долговечность. • За счет такой индивидуальной конструкции есть свое оборудованное подвальное (по всему периметру дома ,где установлено все оборудование отопления , водонагрева , подачи воды из скважины , фильтрация воды)Также помещение можно использовать для других различных назначений на ваше усмотрение(сауна, хранение продукции и многое другое) • Стены толщиной 400 мм из отсевблока и качественный утеплитель обеспечивают отличную теплоизоляцию. • Дом оборудован своей скважиной и шамбо на 10 кубов, что обеспечивает эффективное водоотведение. • Отопление электрическое • На первом этаже сделан дизайнерский ремонт с высокими потолками(большая гостиная и сан узел) создают ощущение простора. • На втором этаже вас ждут 3 уютные спальни(готовые под ваш ремонт ,полностью сделана чистовая отделка) с выходом на 2 лоджии и местом под гардеробную. • Важно отметить, что дом продается со всей ванной и кухонной мебелью и техникой , что позволит вам сразу же в него вселиться! Территория земли 15 соток Установлена теплица 8 м! Посадки(Смородина, жимолость ,слива, вишня, ирга ,малина, а также разные виды многолетних цветов) И остается еще достаточно территории, для воплощений всех ваших фантазий для создания зоны отдыха и барбекю, создавая незабываемые вечеринки и атмосферу уюта в своем доме. Кроме того, у вас есть свой капитальный гараж !!! Не упустите возможность стать владельцем этого прекрасного коттеджа!!!!!



















































































