38 820 ₽/м²
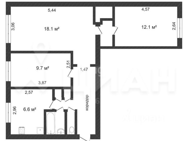
Новая планировка! В продаже трёхкомнатная квартира в г. Амурске, по пр. Комсомольский, 63 - 3/10 этаж, 64,4 кв.м. общая площадь, 8,9(!) кв.м. площадь кухни - пластиковые окна (кроме одного, на две стороны дома) - раздельные комнаты, большая кладовая - натяжной потолок на кухне, новый линолеум, заменены межкомнатные двери - раздельный санузел (заменена подводка, установлены приборы учёта) - современная стальная входная дверь - чистый подъезд, новый рабочий лифт (с первого этажа) - дешёвый природный газ - взрослые собственники, без долгов Остаётся: кондиционер и кухонный гарнитур Рядом: детская площадка, школа и детский сад, Спортивный клуб, Художественная школа, техникум с бассейном, популярные магазины (Пятёрочка, Самбери, семейное кафе Зебра и др.), аптеки, поликлиника, гаражные кооперативы, остановки автобусов Трёхкомнатная квартира новой планировки на востребованном этаже, развитый район Добро пожаловать на просмотр) Продам 3-комнатную квартиру до 2,5 млн. рублей в Амурске.












































































