Первичная продажа



Доступно всем на 2 года от 10%
ещё 12 акций
сдача ГК: 1 кв. 2028 года
7 217 978 ₽
145 700 ₽/м²
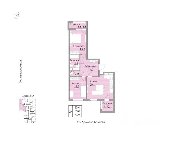
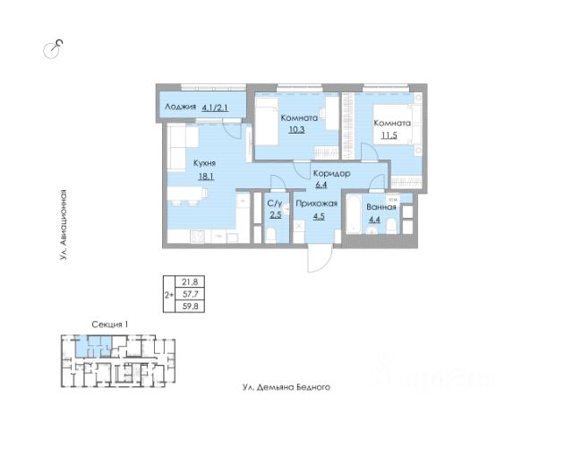
Продаётся 2-комн. квартира площадью 49,54 кв.м на 7 этаже 10 этажного дома (Корпус 11, Секция 1) проекта ПИК Северный парк. Светлый просторный подъезд на уровне земли, функциональная планировка, большие окна, без отделки.
"Северный парк" - жилой квартал в развитом Железнодорожном районе Хабаровска с закрытыми дворами-парками, школой, детским садом и спортхабом. До центра города получится добраться за 10 минут на автомобиле.
"Северный парк" возводится на пересечении улиц Воронежской и Совхозной, в 10 минутах езды от центра Хабаровска. В проекте будет 30 корпусов.
Входы в подъезды "Северного парка" мы сделаем на уровне земли для комфортного перемещения по территории квартала любым способом: пешком, на самокате или с коляской. Благодаря панорамному остеклению, которое пропускает много естественного света, первые этажи будут просторные и светлые.
В квартирах предусмотрены большие окна, застеклённые балконы и лоджии - будет светло и уютно даже зимой. Все квартиры сдаются с предчистовой или полной отделкой на выбор.
В каждом дворе будет парк - тихое приватное пространство для жителей, где красиво и уютно в любое время года и можно расслабиться после рабочего дня. Через весь квартал протянется широкий пешеходный бульвар с велодорожками, велопарковками, зонами для отдыха, детскими и спортивными площадками.
В "Северном парке" будет всё необходимое для комфортной жизни: на первых этажах откроются магазины, кафе и полезные сервисы. Внутри жилого квартала запланировано строительство школы и детского сада. Для удобства жителей предусмотрены многоуровневые паркинги, индивидуальные кладовые и колясочные. Артикуль 989193 (ООО "СЗ ПРОЕКТ СТРОЙ") Продается 2-комнатная квартира с большой кухней в Хабаровске.














































































































