Мы используем куки-файлы. Соглашение об использовании
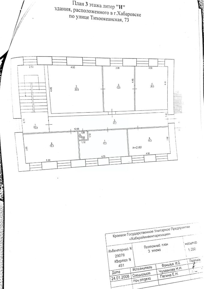
Площадь500 м²
Этаж1 из 3
ВАЖНО! БЕЗ КОМИССИИ. Предложение от собственника. Звоните. Сообщения не читаем. Трехэтажное, отдельно стоящее здание на земельном участке в собственности. Этаж по 120 кв. Три этажа плю тееплый, сухой подвал под мастерскую. Теплый гараж на 2 машины. Холодный склад. Территория огорожена и выложена плиткой. Коммуникации центральные от города. Офисное помещение, в Кировском районе по улице: Тихоокеанская. Рядом улицы: Даниловского, Стрельникова, Трехгорная, Калинина, Брестская, Орджоникидзе, Джамбула, Бойко-Павлова, Фоломеева, Сибирская, Шелеста, Бондаря, Руднева. Количество входов - 1. Отдельный с улицы. В помещении есть подвод воды. Состояние хорошее. Материал стен - кирпичный. Окна - пластиковые. Полы - линолеум. Потолок - армстронг. Высота потолков - 3. Сан. узел раздельный. Канализация - централизованная. Система отопления - централизованное. НетДорога до объекта - асфальт. Забор вокруг территории - профлист. Въезд на территорию - собственный. Количество ворот на территорию - 2. Благоустройство территории - брусчатка.
lock

Войдите или зарегистрируйтесь
для просмотра информации

Просматривайте условия сделки и всю информацию об объекте
Сохраняйте фильтры в поиске и не вводите заново
Доступ к избранному с любого устройства
Неограниченное добавление в избранное
Позвоните автору
Вам ответят на все вопросы
Остались вопросы по объявлению?
Позвоните владельцу объявления и уточните необходимую информацию.
  • Инфраструктура
  • Похожие рядом
  • Общая площадь500 м²
Помощь надёжных риелторов
Риелтор партнёр Циан поможет купить или продать любую недвижимость
35 000 000 ₽
469 038 $
398 227
Цена за метр
70 000 ₽
Налог
НДС включен: 6 311 475 ₽
Агентство недвижимости
Документы проверены